Reinforcement effects in different orders of joint reinforcement

Different structural reinforcement effects in different orders in carbon fiber plate reinforcement and section enlarge

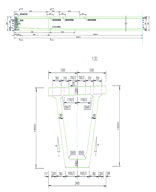
This paper takes a prestressed concrete simply supported box girder bridge in Guizhou Province as the background. The length of the bridge is 35m, the calculated span is 34m, and the design load is Class II highway.


In order to improve the load-bearing capacity of the bridge, it is proposed to adopt a joint reinforcement method of sticking 2mm carbon fiber plate on the bottom surface of the beam and removing and replacing the original 11.5cm second-stage pavement of the bridge deck to strengthen the simply supported beam. In the process of joint reinforcement of the bridge, the reinforcement effect is analyzed by replacing the carbon fiber plate and the laminated layer in the different reinforcement sequence.


1.jpg

Using the finite element analysis software MIDAS/FEA, aiming at the existing reinforcement methods, a beam bridge model with different reinforcement sequences was established. Reinforcement method: enlarged section, carbon fiber plate and prestressed carbon fiber plate, etc. Through the comparative analysis of the beam bridge under different reinforcement sequence model force deformation and crack expansion.


The results show that the order of strengthening the carbon fiber plate first and then increasing the cross-section is better than increasing the cross-section first and then strengthening the carbon fiber plate and simultaneously increasing the cross-section and strengthening the carbon fiber plate. In actual engineering, when the reinforcement work surfaces of the two reinforcement methods do not conflict, the order of the reinforcement methods may not be considered. The use of two reinforcement methods for simultaneous construction can save construction time while hardly affecting the reinforcement effect.


The beam bridge adopts different reinforcement sequences in the joint reinforcement, which slightly improves the cracking moment of the beam bridge, the yield moment of the steel bar, and the structural rigidity. However, the ductility of the beam bridge and the maximum width of the crack are slightly reduced, and it has almost no effect on the crack propagation along the longitudinal direction and the height of the beam, and has no effect on the ultimate bending moment of the beam bridge.


Horse Construction Recommended Products

You can find anything here you are in need of, have a trust trying on these products, you will find the big difference after that.

HM-1.2T Unidirectional Carbon Fiber Strip

High strength carbon fiber reinforced polymer (CFRP) strip / laminate / plate for structural strengthening and concrete repair

See more >

HM-120 Steel Bonding Adhesive

Two-component epoxy modified epoxy structural strengthening adhesive for bonded steel plate to concrete

See more >

HM-500 Injection Anchoring Adhesive

Two-components modified epoxy resin adhesive, with high quality plastic tube, double cartridge package for anchoring

See more >

Back
Top
Close